Theobalds Park Road, Enfield

2 bedroom Detached bungalow for sale

£650,000

  • 2 bedroom
  • 1 bathroom
  • 2 reception

Key Features

  • • Proximity to Crews Hill Golf Club
  • • Adjacent to Green Belt Countryside
  • • Walking Distance to Crews Hill Train Station
  • • Proximity to Enfield Town Shopping Centre
  • • Easy Access to A10 & M25
  • • Detached Bungalow
  • • Two Double Bedrooms with Fitted Wardrobes
  • • 18ft Living Room
  • • Modern Fitted Kitchen
  • • Modern Fitted Bathroom & Separate Wc
  • • Double Glazing & Gas Central Heating
  • • 37ft Double Garage to the Side
  • • Driveway for Multiple Vehicles
  • • Beautifully Presented Rear Garden with Side Access

Description

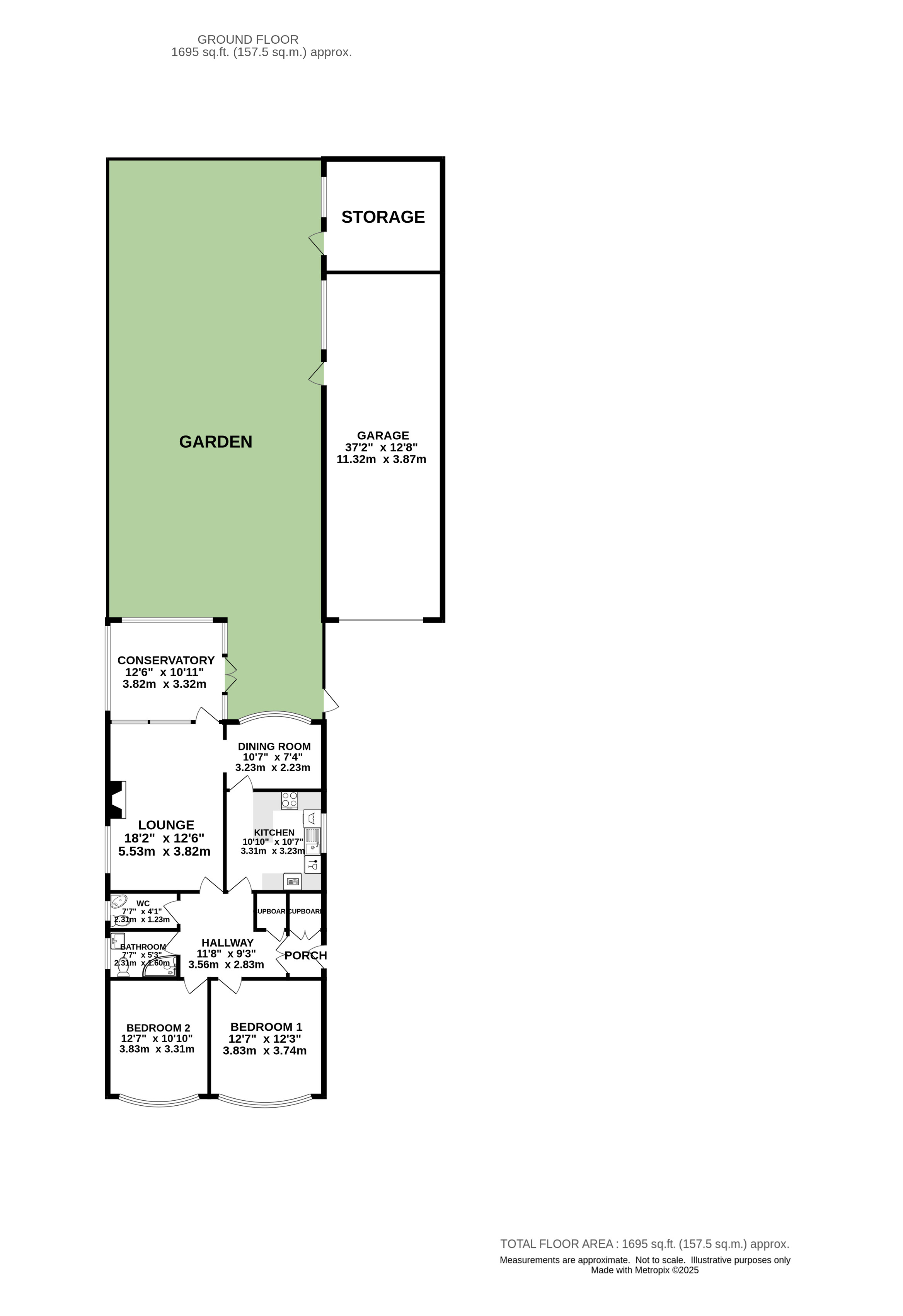
Benefits include a Porch, an Entrance Hallway with Storage, an 18ft Lounge, a 10ft Dining Room, a Modern Fitted Kitchen, a Modern Fitted Bathroom Suite and a Separate WC, a Double Garage to the Side, a Driveway for Multiple Vehicles, a Beautifully Presented Rear Garden with Side Access and a Storage Shed, Double Glazing, and Gas Central Heating. **Council Tax Band F** Viewings Highly Recommended.


Location


Floorplan

Floorplan

EPC

EPC for Enfield

Enfield Town Branch

64 Church Street, Enfield EN2 6AX, London