Cecil Road,

3 bedroom Semi-detached house for sale

£875,000

  • 3 bedroom
  • 1 bathroom
  • 2 reception

Key Features

  • • Located in the heart of Enfield Town
  • • Attractive three-bedroom semi-detached home
  • • Thoughtfully extended to the rear for modern family living
  • • Ground floor comprises comfortable reception space and a downstairs WC
  • • Rear extension enhances space, flow, and natural light
  • • Kitchen and dining areas connect directly to the garden
  • • Three well-proportioned first floor bedrooms
  • • Third bedroom opens onto a private balcony
  • • Family bathroom on the first floor
  • • Centrally positioned with easy access to Enfield Town shops, cafés, and amenities
  • • Established transport links into central London
  • • Practical and appealing layout combining space, comfort, and convenience

Description

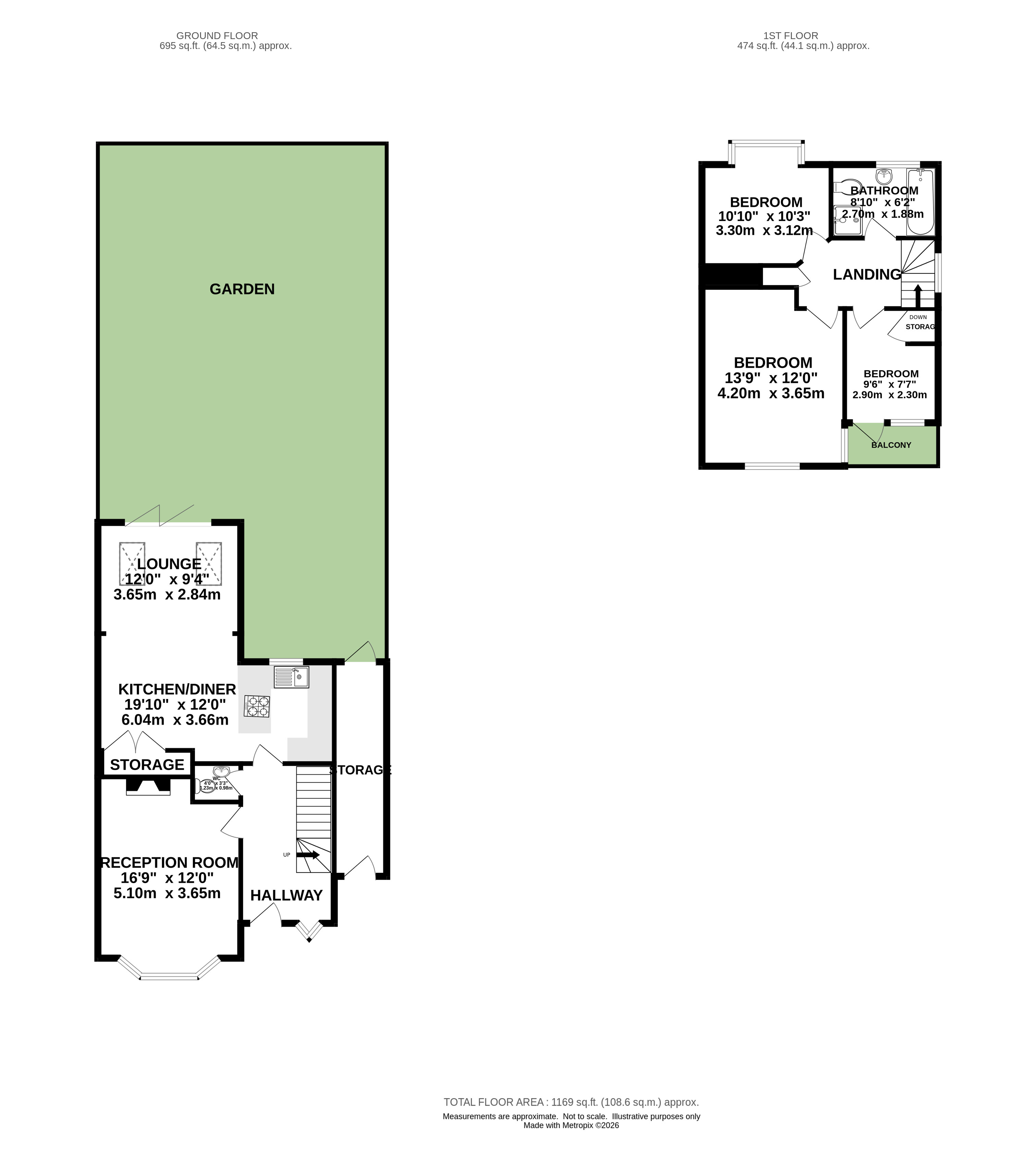
This property features, on the ground floor, an entrance hallway with stairs to the first floor, a ground floor WC, a reception room currently used as a spare bedroom, a modern fitted kitchen/diner, and a lounge with bi-folding doors opening onto the rear garden. The first floor offers a large landing, three good-sized bedrooms, a family bathroom, and a balcony accessible from the third bedroom. Additional benefits include a front garden with potential for off-street parking, a good-sized rear garden, double glazing, and gas central heating.


Location


Floorplan

Floorplan

EPC

EPC for Cecil Road, Enfield, Greater London

Enfield Town Branch

64 Church Street, Enfield EN2 6AX, London

Similar Properties

Enfield
For Sale

Armfield Road, Enfield

4 Bed Terraced House For Sale
Guide price Offers in excess of £625,000
Enfield
For Sale

Enfield Road, Enfield

2 Bed Ground floor flat For Sale
Guide price £350,000
Enfield
For Sale

Monks Road, Enfield

2 Bed Semi-detached bungalow For Sale
Guide price Offers in excess of £525,000